Festnetznummer:
07774 2130293
Gewerbestraße 8
78359 Orsingen-Nenzingen
Emailadresse:
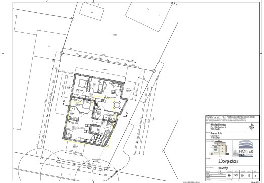
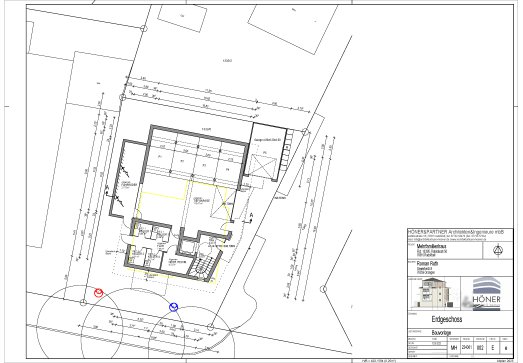
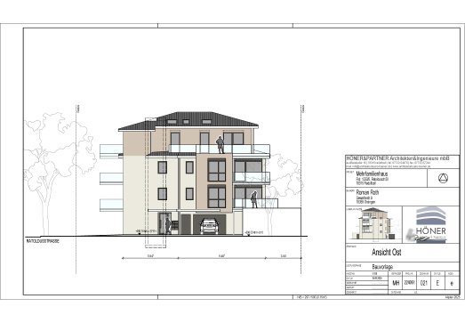
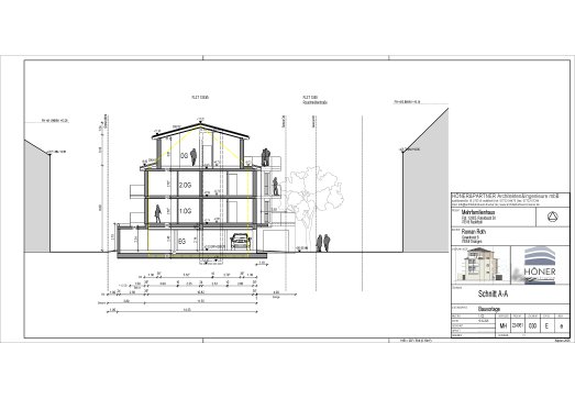
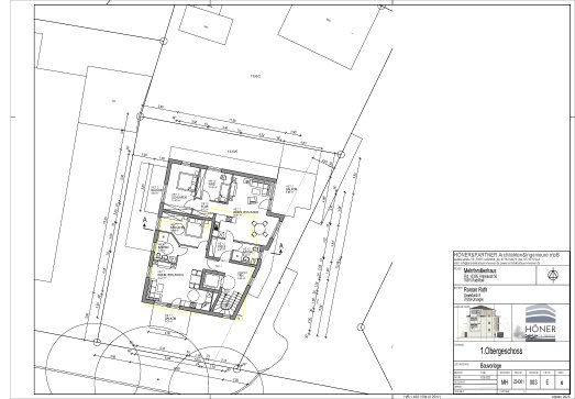
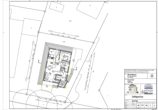
Im Herzen von Radolfzell errichten wir in zentraler Lage ein Mehrfamilienhaus mit 5 Wohneinheiten. In der Ratoldusstraße 50 wohnen Sie sehr ruhig und doch zentral mitten in Radolfzell. Die Innenstadt, der Bahnhof und der See mit Schiffsanbindung sind in ca. 10 Gehminuten fußläufig zu erreichen. Sie können auch bequem mit dem Stadtbus, dessen Haltestelle in einer Gehminute erreichbar ist, an alle wichtigen Punkte der Stadt fahren. Bäckereien, Kirchen, Gaststädten, Einzelhandel, Ärzte, Apotheken usw. sind selbstverständlich in Radolfzell vorhanden.
Besonderheiten der Wohnanlage:
· Sehr zentral und doch sehr ruhig gelegen
· Mehrere Balkone in verschiedenen Ausrichtungen
· Personenaufzug
· Garagenstellplätze
· Lage an verkehrsberuhigten Straßen (7 kmh und 30 kmh)
Für detaillierte Informationen kontaktieren Sie uns gern per oder telefonisch.
-> Wir sind auf der Suche nach Baugrundstücken!